Planning
Hardscape Construction & Our Lifetime Structural Warranty

What You Should Expect?
When built correctly, hardscape structures can and should outlast us all. At Outdoor Dreams, we proudly adhere to the highest standards of build practices and back our hardscape structures with a lifetime structural warranty.
Settling & Failure is not normal
Hardscape structures can and should outlast us all
The world is filled with masonry structures that have lasted for hundreds and thousands of years. If the Egyptians could build pyramid structures that have stood tall for over 4,000 years, there is no reason that, with today's superior engineering, an outdoor living space can't be built for a lifetime of enjoyment.
Industry Standard: 1-5 year warranties
Why are most warranties so short?
Despite the superior engineering available today, the typical hardscape warranty is only 1 to 5 years. The reason for this is quite simple: most hardscape structures are not built to last.
Most homeowners do not realize that most hardscape structures have no enforceable building code. Instead of building to standards set for safety, longevity, and homeowner protection, hardscape structures are often built to keep prices competitive. The foundation is often the first place where corners are cut to save money, leading to settling and failure.
What does failure look like?
Proper build practices do exist, but the lack of enforceable building codes has created a hardscape industry where these practices are rarely implemented. This has led to settling and structural failures becoming commonplace and expected. Since these failures are caused by improper foundations, most patio failures cannot be permanently fixed, leaving homeowners with two choices: live with a tripping hazard and eyesore or pay to have the structure demolished and rebuilt correctly.
The High Cost of Improper Construction
Improperly built hardscapes lower the attractiveness of a space, making it less likely to be used, and diminishing the enjoyment of your home. Additionally, it usually lowers the resale value of a home. Once a space becomes unsightly and/or full of tripping hazards, most prospective buyers plan on replacing the hardscape which lowers the ultimate price they're willing to pay.
The Outdoor Dreams Difference
Lifetime Structural Warranty
At Outdoor Dreams, we proudly adhere to the highest standards of build practices and back our hardscape structures with a lifetime structural warranty that guarantees against settling and failure.
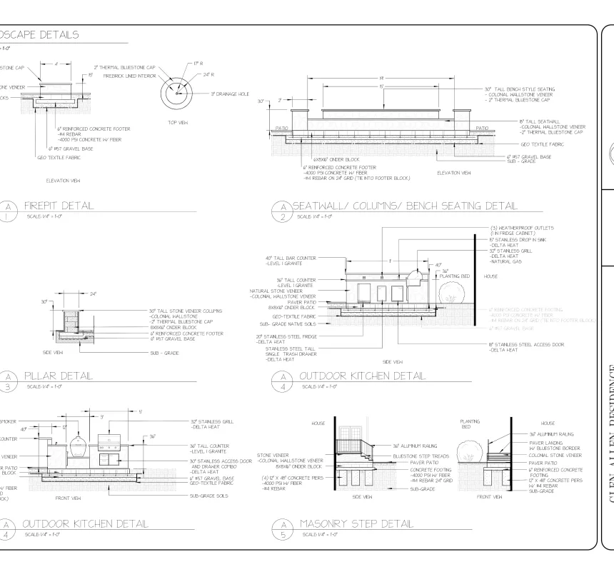
You'll never have to question how your structures are being built. We produce detailed construction drawings of every structure and include them in the contract. For our clients' reassurance, we create this contractual obligation to build our structures exactly as designed.
Imagine a lifetime of enjoyment...
Relaxing Windsor Farms Retreat Project
Relaxing Windsor Farms Retreat Project
The design features numerous exciting elements including a pavilion-covered patio, gas fireplace, outdoor, water feature, stepping stone walkway, driveway with parking area, custom shed, and a new landscape that completes the relaxing and natural atmosphere. Without question, the resulting space is truly a full backyard transformation.
Avoiding Common Pitfalls in Outdoor Living and Poolscape Projects
Avoiding Common Pitfalls in Outdoor Living and Poolscape Projects
This article breaks down the key challenges homeowners face and illustrate them with real-life scenarios that highlight why a cohesive, professional approach is essential.